.

El Ayuntamiento de Casares ha aprobado en Junta de Gobierno el proyecto de construcción del tanatorio de Casares, con lo que comienza a trabajar para la licitación de las obras
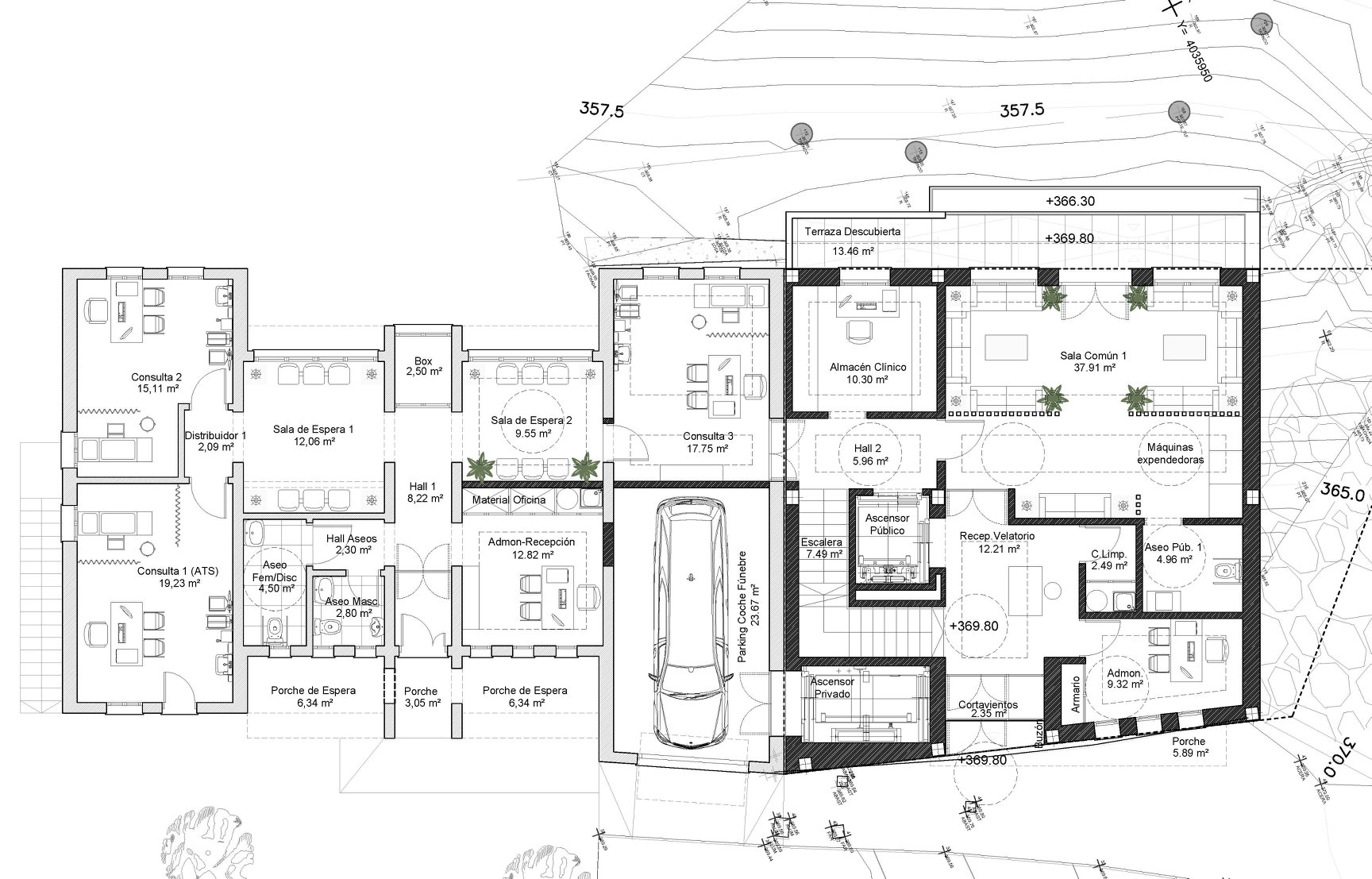
El nuevo edificio estará ubicado junto al centro médico, contando con dos salas de velatorio y el resto del espacio queda como disponible para la futura ampliación del consultorio médico.
El alcalde de Casares, Pepe Carrasco, ha señalado que dotar al casco histórico de un espacio para velatorios es una de las prioridades del equipo de gobierno de Casares que trabaja para su próxima construcción.